Cho Thuê Shophouse Lumiere Riverside
Cần cho thuê Shophouse Lumiere Riverside An Phú quận 2 - Thành phố Thủ Đức. Dự án khu căn hộ hạng sang có vị trí đắc địa mặt tiền đường song hành giữ phường An Phú và P. Thảo Điền. Gần TTTM Vincom
Địa chỉ: Số 628 đường Song Hành - Võ Nguyên Giáp, P An Phú, Quận 2.
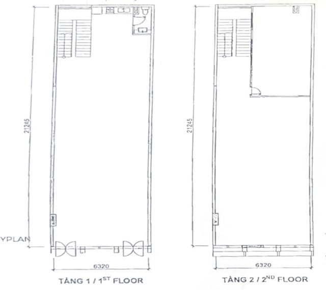
Diện tích shophouse rộng 278.6m2
Tầng trệt shophouse rộng 139.3m2, lầu 1 rộng 139.3m2
Mặt tiền rộng 6.32m, chiều dài 21.2m
Cho thuê kinh doanh mọi ngành nghề làm văn phòng công ty, nhà hàng ăn - uống cafe, showroom, Nail & Spa...
Kí hợp đồng cho thuê lâu dài
Cho Thuê Shophouse Lumiere Riverside An Phú vị trí đắc đại liền kề nhà ga tuyến đường sắt Metro Bến Thành, Suối Tiên, Mặt tiền đường Võ Nguyên Giáp, kết nối giao thông khu vực thuận tiện
Giá cho thuê shop Lumiere Riverside:
Liên hệ xem Shop: 0901 467 787
Chuyên nhận môi giới mua bán ký gửi nhà đất:


Xem thêm